Los Reartes, Comuna de Los Reartes, Pedanía Los Reartes, Departamento Calamuchita, Córdoba, X5194, Argentina
Venta









📍 Ubicación exacta en Google Maps
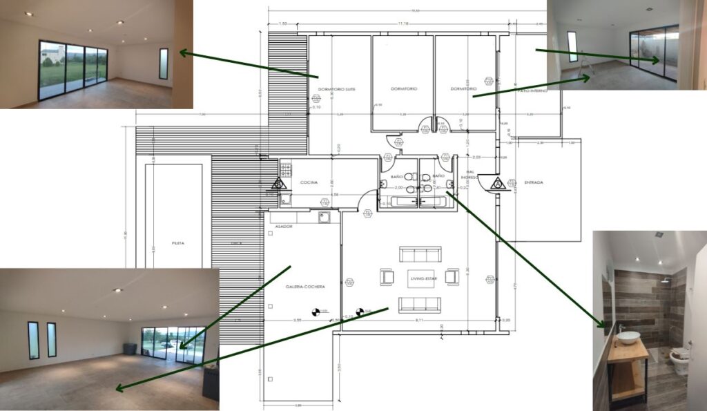
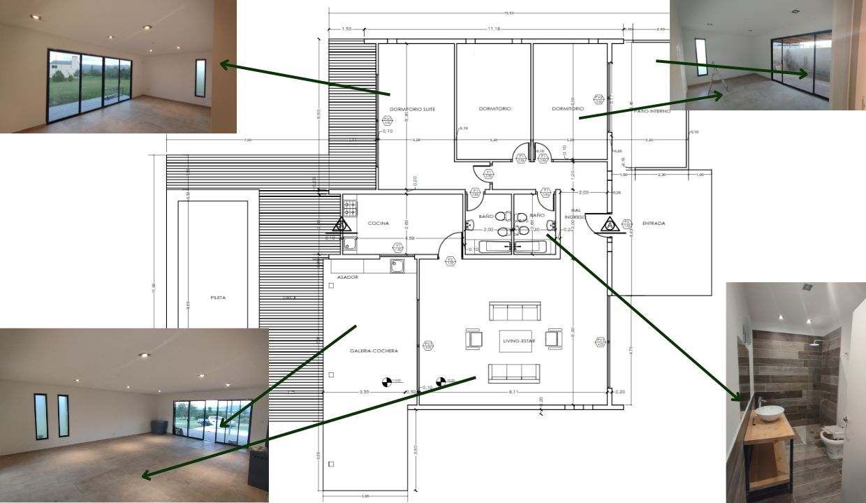
Te presentamos esta hermosa casa en venta en el exclusivo barrio Altos del Corral, en Los Reartes. Ideal para vivir o vacacionar, en un entorno natural privilegiado con vistas al Lago Los Molinos y muy buen acceso desde el ingreso al barrio.
✨ Características principales:






🛠️ Servicios y Comodidades del Barrio:


Esta propiedad combina el confort de una vivienda moderna con la tranquilidad y belleza de un entorno natural único. Ideal tanto para vivir todo el año como para vacacionar.
¡Tu nuevo hogar te espera en Altos del Corral!
RH-27421-Dos Lotes en Venta en Barrio La Ensenada – Los Reartes | Oportunidad Única